Den Haag heeft sinds juni 2012 een eigen World Trade Centre en deze nieuwe invulling is aanleiding voor een bouwkundige transformatie en upgrade van een aantal publieke ruimten in het WTC Plaza en Congress Centre naar een internationaal WTC kwaliteitsniveau. Relatief jong bestaand vastgoed is herontwikkeld. Eigenaar Bouwinvest had hiervoor Sens Real Estate en atelier PRO ingeschakeld.
De opgave
Het WTC The Hague combineert werken, wonen en vrijetijdsbesteding op unieke wijze. Het ligt in Den Haag Nieuw Centrum. Een internationaal zakendistrict dat bekend staat als één van de beste kantoorlocaties van Nederland (2014 Jones Lang LaSalle). De Spaanse stedenbouwkundige Joan Busquets tekende het masterplan met brede trottoirs van graniet, statige bomen en de modern futuristische 'netkous': een wijk met allure en uitstraling.
Het WTC ligt op een toplocatie, maar functioneerde nog niet optimaal. Wat was de opgave?
- Een duidelijke centrale ingang ontbrak.
- De verschillende publieke functies lagen ver van elkaar verspreid, of hadden geen interne verbinding.
- De uitstraling van het interieur was gedateerd en de indeling was verrommeld na meerdere kleine ad hoc verbouwingen. De faciliteiten die het WTC biedt, waren niet goed zichtbaar.
- Het Plaza kon niet goed gebruikt worden voor events, terwijl dit juist bedoeld is als verblijfsgebied.
- De logistiek moest worden verbeterd, inclusief bewegwijzering, routing en parkeerafhandeling ondergronds.
- Een aanpassing van de aangrenzende buitenruimten.
- Communicatie, branding en signing van alle ruimten.
Alles draait om zichtbaarheid
Een betere beleving van de publieke ruimten, dat was in het kort de opgave. Dit is bovendien ook belangrijk voor de verhuurbaarheid van de kantoorruimten en voor het WTC in het geheel. De gewenste kwaliteitsimpuls trof niet alleen het interieur, maar kon op grotere schaal de profilering van het Beatrixkwartier een boost geven. Het gebied scoorde goed qua bereikbaarheid, maar miste een bepaalde levendigheid.
Aanpak (her)ontwikkelopgave
Bij elke (her)ontwikkel opgave kijkt atelier PRO eerst goed naar alle aanwezige kwaliteiten.
Hoe kunnen bestaande kwaliteiten met een (liefst) eenvoudige aanpassing meer functioneel worden? Welke stromen bezoekers zijn er, waar bevinden zij zich en hoe bewegen ze door het gebouw? Hoe kunnen ruimten beter gebruikt worden, als ze meer bereikbaar zijn? Waar liggen de kansen voor verbeterde zichtbaarheid en positionering van het WTC-merk?
De ingrediënten van de aanpak van atelier PRO zijn:
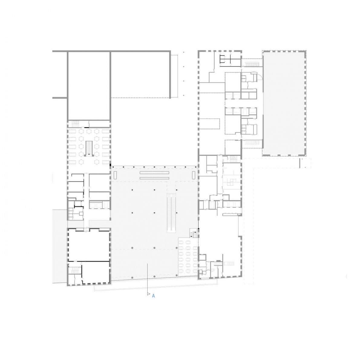
- Een centrale entree: Alle bezoekers komen via het Plaza binnen, met zicht op de centrale receptie balie. Dit betekent een andere inrichting van de buitenruimte, aangepast gebruik van de huidige redundante entree en een andere routing en signing in de parkeergarage.
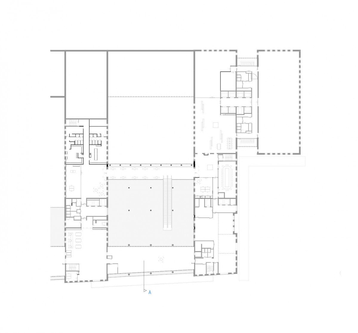
- Verbeterde interne logistiek: Om huurders via het Plaza naar de aangrenzende kantoortorens te leiden, is een dubbele roltrap geïntroduceerd naar de tweede verdieping, midden in het Plaza. Zo is het bereik van het Plaza vergroot en hebben gebruikers een directe verbinding met de liften naar de kantoren. Dit scheelt interne reistijd en vereenvoudigt de circulatie. Bovendien geeft de roltrap de bezoeker oriëntatie en overzicht.
- Begane grond optimaal benutten: De ruimten op de begane grond zijn direct gekoppeld aan het Plaza. Deze faciliteiten, huurdersvoorzieningen, retail en horeca hebben een vergrote bereikbaarheid en zichtbaarheid gekregen.
- Hoogwaardige verblijfskwaliteit realiseren: Een deel van de begane grond is vrijgemaakt van verkeer zodat het Plaza een verblijfskwaliteit heeft gekregen. Naast een verschil in inrichting, materialisatie en stoffering ondersteunt de diversiteit in aanbod van horeca en retail dit. De oppervlakte is vergroot door de achtergevel een stramien naar achteren te schuiven. Een goede verblijfskwaliteit is verder gerealiseerd door akoestische maatregelen, aanpassingen aan installaties en binnenklimaat.
- Meer zichtbaarheid van buiten: Ook de gevel is aangepakt. De nieuwe luifel geeft meer dynamiek en reliëf en begeleidt de overgang naar binnen. De entrees aan de voorzijde zijn vergroot en de commerciële ruimten op de begane grond hebben een eigen toegang gekregen. Het shop-in-shop effect is gunstig voor de bezetting en synergie binnen het Plaza.
- Een nieuwe jas voor het interieur: Tot slot heeft het complete interieur een makeover gekregen. Trappen, bordessen en balkons hebben allemaal dezelfde balustrade gekregen. Verschillende plafondafwerkingen zijn vervangen en in een materiaallijn afgewerkt met hogere akoestisch dempende waarden. Verschillende stijlen in bewegwijzering zijn vervangen; installatietechnische onderdelen zijn mooi weggewerkt; verlichting is verbeterd. Kortom: het is opgeruimd en strakgetrokken.
Het resultaat
Het nieuwe WTC Plaza zorgt voor een sterk verbeterde bereikbaarheid en herkenbaarheid van het WTC als geheel. Voor aangrenzende ruimten zijn er meer gebruiksmogelijkheden ontstaan en zo kunnen mensen dit goed ontsloten gebied ook beter gaan benutten. De upgrade betekent meer dan toegang en aanbod verbeteren: het trekt nieuwe mensen naar een gebied waar ze voorheen niet kwamen. De relatief hoge dichtheid en functiemenging dragen daaraan bij. Op grotere schaal profiteert ook het Beatrixkwartier van deze aanpak.
Bekijk de video die Bouwinvest maakte in november 2015 over WTC The Hague.
De video van Bakels en Ouwerkerk Bouwgroep geeft een beeld van de verbouwing.
Lees ook
Vernieuwd WTC The Hague feestelijk heropend
Kantorencomplex moet ontmoetingsplek worden (16 juni 2016, Den Haag Centraal)
Bouwinvest presenteert vernieuwd WTC The Hague (17 juni 2016, Vastgoedmarkt
Twintig meter hoge roltrap voor WTC Den Haag (16 juni 2016, Cobouw)