Hoofdkantoor Loyens & Loeff, Amsterdam

prototype


duurzaam advocatenkantoor

Hoofdkantoor Loyens & Loeff, Amsterdam

Onderzoek naar mogelijke opvolger van het Forumgebouw aan de Zuidas: een studieopdracht voor het hoofdgebouw van een groot advocatenkantoor waarbij kwaliteitsgerichtheid en openheid de inspiratie vormden van het ontwerp. Het gebouw krijgt  een werkomgeving die op een duurzame manier transparant is, waar ontmoeten centraal staat en waarin alle medewerkers een eigen plek hebben. Een kantoor als een verticale stad: met haar eigen straten, terrassen en pleinen.


Door een L-vormige opbouw heeft de toren maximaal uitzicht en geen last van de belendende gebouwen. In de onderste lagen is extra ruimte voor  grotere programmaonderdelen zoals een royale entree met receptie waarvandaan luie trappen naar het restaurant op de eerste verdieping leiden. Tevens bevinden zich op de begane grond plintfuncties: voorzieningen zoals een fitnesscentrum, lunchroom of kinderdagverblijf die een meerwaarde bieden aan de werkomgeving. Het kantoorprogramma is in de toren georganiseerd ronde een compacte kern zodat een goede verhouding tussen verhuurbaar oppervlak en bruto vierkante meters ontstaat. De kantoorkamers zijn gegroepeerd rond een aantal atria in de bredere gedeelten van de toren. De atria functioneren als ontmoetingsruimten en brengen licht, lucht en ruimte in het gebouw.

Het kantoor heeft een slimme structuur die verschillende kantoordieptes mogelijk maakt. De diepere beuken bieden ruimte aan de atria maar ook is er plaats voor archief, service en een aantal balkons. De gevels zijn ontworpen om het energieverbruik van het gebouw te minimaliseren: overtollige zonnewarmte wordt door de zonwerende gevels buiten gehouden. De richting en ritmering van de op de kunstwerken van Jan Schoonhoven geïnspireerde zonwerende vlakken is op de oriëntatie van de gevels aangepast. Horizontaal geleed op het zuiden, verticaal op het oosten en westen en een gladde vliesgevel op het noorden.

 

.

 

  • atelier PRO
    exterieur toren
  • atelier PRO
    exterieur toren
  • atelier PRO
    maquette
  • atelier PRO
    entree met trap
  • atelier PRO
    entree met balie
  • atelier PRO
    atrium
  • atelier PRO
    atrium
  • atelier PRO
    restaurant
  • atelier PRO
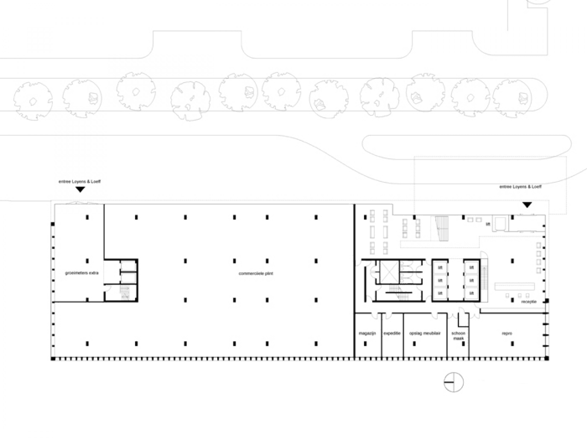
    begane grond
  • atelier PRO
    eerste verdieping
  • atelier PRO
    doorsnede