Brede school De Brink, Vathorst

Een hart voor elke school


de schaal van de kinderen als uitgangspunt

Brede school De Brink, Vathorst

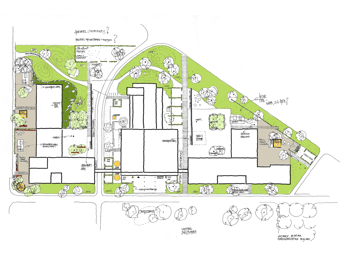
De Brink is een voorzieningen cluster in  Vathorst, een nieuwbouwwijk bij Amersfoort. Hij bestaat uit een zorgcentrum, een kerk, woningen en onderwijs- en vrijetijdsvoorzieningen. De diverse instellingen wilden een samenwerking realiseren waarin de eigen identiteit herkenbaar is en waar binnen de grote schaal van het totale cluster ruimte is voor spel en geborgenheid voor de allerkleinsten.
Atelier PRO en SVP architecten hebben in nauwe samenwerking de onderwijs- en vrijetijdsvoorzieningen als één complex ontworpen waarbij atelier PRO de scholen ontwierp en SVP architecten het middenblok met vrijetijdsvoorzieningen.

Uitgangspunt voor elke school is de centrale hal, het hart, waar de specifieke identiteit van elke school tot uitdrukking kan komen. Deze centrale hal bestaat uit een gedeelte van de aula, de centrale trap en een groot speellokaal. Door deze te koppelen ontstaat niet alleen een ruimtelijk boeiende compositie maar ook een multifunctionele plek binnen de school voor themafeesten, schooltheater, sinterklaas, etc.

Om deze centrale hal liggen de onderwijsclusters gegroepeerd. Elk cluster bestaat in principe uit 4 lokalen die zodanig zijn geprojecteerd dat er een centrale ruimte per cluster ontstaat. Deze ruimte is te gebruiken als uitbreiding van de lokalen. Hier kan gespeeld worden en zelfstandig gewerkt, op de computer, in de blokken hoek of in de leeshoek, zonder het gevoel te hebben op de gang te zitten.

Per cluster is een aparte entree gemaakt. Hierdoor wordt de massale stroom aan kinderen op een natuurlijke wijze in kleinere groepen gedeeld zodat de kinderen, zeker de kleintjes, zich beter op hun gemak voelen.

Voor atelier PRO is de schaal van de kinderen uitgangspunt geweest met aandacht voor eenheid in detail en behoud van de grote lijn. Daarom is gekozen voor grote plastische volumes waarbij een aantal ingrepen tot verfijning en kontrast leiden.


Prijzen en Nominaties

- Nominatie Scholenbouwprijs 2004

  • Peter de Ruig
    gevel
  • Luuk Kramer
    detail in baksteen
  • Ido de Boer
    achter de boompjes
  • Luuk Kramer
    gevel
  • Joeri van Beek
    speelplaats
  • Luuk Kramer
    trappen en atrium
  • Luuk Kramer
    dubbelhoge ruimte bij trappen
  • Luuk Kramer
    gang
  • Luuk Kramer
    gang
  • Luuk Kramer
    gang boven
  • Joeri van Beek
    trappen
  • atelier PRO
    0002 Vathorst sitkleur