Blok 10, Brede school met sport, Antwerpen

Sport on top


Dorp op maaiveld

Blok 10, Brede school met sport, Antwerpen

Voor de nieuwe Antwerpse stadsuitbreiding Nieuw Zuid hebben wij middels een Design en Build een ver uitgewerkt plan gemaakt voor ‘een leerlandschap van de toekomst met dubbele bassischool en sportprogramma’. Hier staan de verschillende nieuwe bewoners van Nieuw Zuid in de leeftijd van 0 tot 80 jaar centraal. De stedelijke context in combinatie met een zeer vooruitstrevende visie op de leeromgeving voor kinderen maken het tot een bijzondere opgave. Het nieuwbouwvolume fungeert als baken in de wijk, als vereenzelviging van een deel van het gemeenschapsleven.

Sport on top
Met een footprint 45m x 55m, in hoogte variërend van minimum 4 en maximum 6 bouwlagen en een volume van ca 40% sport, 60% school en wijkactiviteiten, vraagt het ontwerp van Blok 10 om krachtige ontwerpkeuzes. Een van de keuzes waar we al direct voor stonden was de positie van het grote sportprogramma. Gezien de gesloten functie van sport en de gewenste open, uitnodigende plint, is de sport in de hoogte georganiseerd. Door sport in de hoogte te organiseren ontstijgt Blok 10 de schoolfunctie en vormt zowel overdag als ’s avonds een voor iedereen herkenbaar icoon in de wijk.

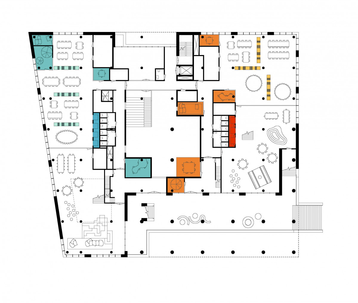
(Kinder)dorp op maaiveld
In het projectvoorstel worden de scholen en de wijkfuncties maximaal maaiveld gebonden georganiseerd. Naast de ruimtes voor de allerkleinsten, bevinden zich hier de refters, de kinderopvang, het handvaardigheidslokaal en de levensloopbestendige ruimtes die tevens door de buurt gebruikt kunnen worden. Ze zijn rondom het atrium gegroepeerd, dat het hart van blok 10 vormt. Het atrium fungeert, samen met de hoofdentree en centrale verticale hoofdstijgkern, als centrum van het project. Zowel de twee basisscholen, als de sportvoorzieningen en de lokalen voor voor- en naschoolse activiteiten zijn vanuit deze ruimte onafhankelijk van elkaar bereikbaar. Ook de verschillende buitenspeelruimtes (tuin op maaiveld, terrassen op eerste en tweede verdieping) zijn nadrukkelijk aan het atrium gelinkt en vanuit het atrium toegankelijk. Ook de door beide scholen gedeelde lokalen zoals refter, bewegingslokaal of slaapruimte en crealokaal bevinden zich rond het atrium. De interne sculpturale uitholling van het volume maakt van het atrium een ruimte op maat van kinderen. Deze krachtige en karaktervolle centrale ruimte is zodanig vormgegeven dat zij multi-interpreteerbaar en multi-inzetbaar is: als speel- en leerruimte voor de kinderen, als ontmoetingsruimte voor de ouders, als opvangplek voor de buitenschoolse kinderopvang met speelelementen.

School zonder klaslokalen
In de vooruitstrevende onderwijsvisie is geen plek voor klaslokalen, maar zijn er ‘learning studio’s’ per bouw voor 80 kinderen en 1 projectroom voor de hele school. Deze diverse zones en ruimten faciliteren op verschillende manieren de verschillende leeractiviteiten: gaande van dynamiek en groepsgebeuren naar rust en concentratieplekken. Deze gradiënt is herkenbaar in de specifieke opbouw, afmetingen en inrichting van de ruimten. Verschillende soorten en types meubilair creëren een aangepaste onderwijssfeer. Aandacht gaat binnen dit concept in het bijzonder naar een goede beheersing van de akoestiek.

Dubbele maat voor vormentaal en materialiteit
Op maat van stad en buurt verschijnt de nieuwbouw als een stoer stedelijk en compact kubusvolume. Bovendien heeft Blok10 een voor de buurt afwijkende gevelritmiek. Waar de gevelritmiek van residentiële gebouwen in horizontale en verticale zin vaak de repetitie van achterliggende woningtypes laat zien, ontstijgt Blok 10 middels zijn gevelontwerp deze woningbouw. De gevel van de sportvoorzieningen is er een met grotendeels gesloten vlakken en sporadisch een raamopening op een functioneel wenselijke positie. Het grote sportvolume bovenop de school vormt een baken binnen de wijk Nieuw Zuid. Rekening houdend met de maat van het kind, laat de gevel van het schoolcomplex daarentegen diversiteit zien. Met uitsnijdingen, grote raamopeningen bij de leeromgevingen, open delen ter hoogte van de overdekte buitenruimtes en schuine lijnen ter plaatse van de buitentrappen veruitwendigen de gevels van de scholen de achterliggende kinderwereld.

 

  • Sport on top
  • De massa uitgehold
  • Atrium
  • Atrium
  • Basis plattegrond met project rooms & learning units
  • School met terrein
  • Terrein