The British School of Amsterdam

Voormalige gevangenis


wordt British School of Amsterdam

The British School of Amsterdam

Voor The British School of Amsterdam transformeerde atelier PRO, in samenwerking met Van Hoogevest Architecten, een voormalige gevangenis tot basis- en middelbare school.
The British School of Amsterdam (BSA) was tot 2021 gehuisvest op drie verschillende plekken in de stad. Voor de toekomst wilde de BSA beschikken over één gebouw waarin de drie verschillende scholen (Early Years, Junior en Senior) samenkwamen, bij voorkeur in een pand met karakter en historie. Deze wens werd verwezenlijkt met de aankoop van de voormalige strafgevangenis aan de Havenstraat 6 in Amsterdam. Dit als panopticum opgezette gebouw is tussen 1888 en 1891 ontworpen en gerealiseerd naar een ontwerp van W.C. Metzelaar, rijksingenieur-architect voor gevangenisgebouwen. De BSA verwoorde de opgave voor ons als architecten zeer beknopt als volgt: "De functie van hét gebouw waar iedereen uit wil om te draaien naar een school waar iedereen wil blijven.”


Visie

In onze visie wilden we het gebouw laten ontwaken als stadsblok. Waar ooit de oude gevangenismuur stond, is nu een boomrijk schoolplein gecreëerd, een karaktervolle ruimte voor lommerrijk verblijf, sport en spel. Daarbij is het gebouw vrijgemaakt van latere aanbouwen, en als monoliet hersteld. Het gesloten gevangenisgebouw hebben we omgevormd tot een expressieve kinderwereld, waarin alle drie de scholen een herkenbare plek hebben. Het DNA van de BSA als geheel blijft goed leesbaar, terwijl ook elke school afzonderlijk een eigen karakter heeft.

Drie scholen, vier vleugels

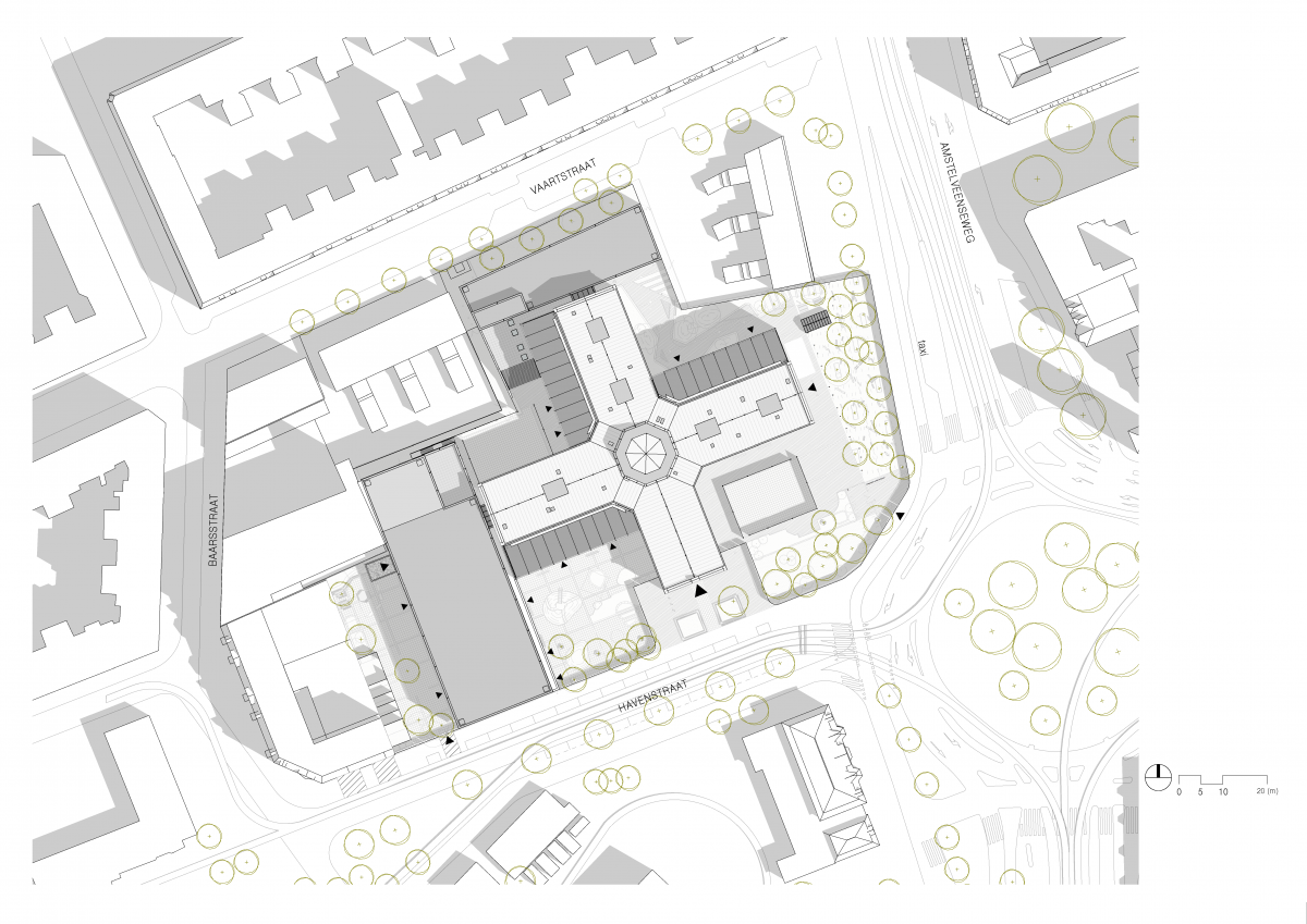
Het programma paste niet volledig in het bestaande gebouw, waardoor er nieuwbouw bij geplaatst moest worden. De voormalige gevangenis is opgezet als panopticum, met vier vleugels rond een centrale ruimte. Drie vleugels bestonden uit cellenblokken, de vierde, kortere vleugel huisvestte onder meer de kapel. Dit maakte het voor de hand liggend om iedere school één vleugel te geven, bestaand uit een deel oudbouw aangevuld met nieuwbouw. De kortere vleugel dient als ingang voor alle leerlingen; deze leidt naar de centrale ruimte, die met tweelaags vensters naar de vier vleugels is geopend en fungeert als kruispunt in het schoolleven.

Een prikkelende wisselwerking

Om het bestaande gebouw geschikt te maken voor onderwijs zijn de cellen geschakeld tot grotere ruimtes en voorzien van extra ramen; in de vides van de cellenvleugels zijn extra vloeren en trappen toegevoegd. Door het amoveren van 20ste eeuwse aanbouwen is het monument weer zichtbaar; historische details zijn daarbij zoveel mogelijk in hun oude luister hersteld. De nieuwbouw is uitgevoerd in een baksteen die aansluit op de bestaande architectuur. Zo ontstaat een prikkelende wisselwerking tussen oud en nieuw, waarbij de intrinsieke kwaliteiten van het historische gevangenisgebouw benut worden - maar met een nieuwe sfeer.

Frisse school in oude bajes

De onderwijsruimtes komen binnen de maat en structuur van het monument goed tot hun recht en versterken de mogelijkheden van de nieuwbouw. Het zijn nieuwe ruimtes voor het onderwijslandschap, met een smart structure om zo duurzaam en toekomstgericht mogelijk te zijn. Ze zijn zo gezoneerd dat er een natuurlijke overgang ontstaat tussen sociale en dynamische ruimtes en rustige onderwijsruimte vol concentratie en diepgang.

Eenheid en verscheidenheid

De identiteit van het gebouw ontstaat zowel vanuit het schoolkarakter als geheel, als ook vanuit de eigenheid van de verschillende scholen - met hun verschillende groepen leerlingen en leeftijdscategorieën. Elke leeftijdscategorie heeft zijn eigen plek die qua maat en sfeer de sociale structuren ondersteunt, en waardoor de huiselijke en geborgen sfeer van de British School volledig tot zijn recht komt. Er is één British School ontwikkeld; tegelijkertijd kreeg elke school een eigen uitstraling binnen het geheel.

Wat een ooit gesloten en introvert gevangenisgebouw was, is nu een levendige, geborgen én verbonden school.

 

Voor meer informatie over The British School of Amsterdam neem contact op met:
principal@britams.nl
Manon van der Veen
Personal Assistant to the Management Board
Mobile: 06 83 71 57 23

 

Prijzen en nominaties

Genomineerd voor de NRP Gulden Feniks 2022
Genomineerd voor de Arie Kepplerprijs 2022
World Architecture News (WAN) 2022 Silver award in the category Adaptive Reuse
Genomineerd voor de Amsterdamse Architectuurprijs 2022
Genomineerd voor ArchDaily Building of the Year Award 2022
Winnaar Geurt Brinkgreve Bokaal 2021
Genomineerd voor Architectenweb schoolgebouw van het jaar 2021

 

Publicaties

Schooldomein Debat intelligent hergebruik p10,14
Stedenbouw & architectuur # 5, oktober 2022 Top 10 succesvol onderwijsvastgoed p57
Architectuur in Nederland Jaarboek 2021/2022 p122-125
Boumeister.de juni 2022 British School of Amsterdam kein gefängnis
Bouwwereld februari 2022 Frisse school in oude bajes p54-62
Architectenweb Introverte gevangenis opent zich als veilig en prettig schoolgebouw
Gebouwd in Amsterdam 2020/2021 p114
Schooldomein Architectuur en verbeelding over het ‘Schoolgebouw van het jaar 2021' p22
Gebouwd in Amsterdam.nl
Archidat Bouwformatie
ARCHI.RU
Schooldomein Bouwen met passie 2021 p32,33
ArchDaily
ArchDaily China
Dearchitect.nl The British School of Amsterdam geopend in monumentaal pand
Het Parool 21 april 2021
Het Parool 10 maart 2017
Architectenweb


Bekijk de inspiraties van de leerlingen van The British School of Amsterdam over hun Dream School.

  • Bird's-eye view of the British School of Amsterdam
  • Nieuwe aanzichten van het monument van de oude gevangenis met hoofdentree en de nieuwe uitbreiding
  • “The Globe”, een centrale ontmoetingsplek voor groot en klein
  • Cellenvleugel. De oorspronkelijke smalle galerijen zijn verbreedt door stalen invoegingen in de vides
  • Transparante verbinding tussen oud en nieuw
  • Leerplein voor de kleuters in de gangzone
  • Doorgebroken cellen om grotere onderwijsruimten te maken
  • Nieuwe klaslokalen voor de Early years
  • Getoogde lokalen
  • Gym
  • Early Years playground en gevel gymzaal
  • Oud- en nieuwbouw op het Noord en senior playground
  • Playground
  • Historische luchtfoto van de originele situatie
  • Situatie
  • The British school of Amsterdam