Brede school en woningen Meerpolder, Berkel en Rodenrijs

Stedelijk bouwblok


opnieuw uitgevonden

Brede school en woningen Meerpolder, Berkel en Rodenrijs

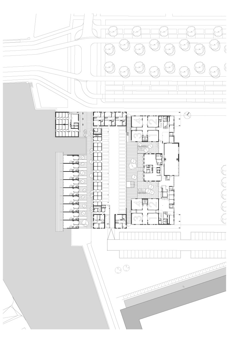
Meerpolder in Berkel & Rodenrijs is onderdeel van een nieuw voorzieningenpakket. In de gesloten blokstructuur van het stedenbouwkundige plan, is een zeer compact project ontstaan waarbij woningen zich op en om de brede school nestelen. Het is een compositie die de blokstructuur relativeert; de geslotenheid wordt doorbroken met doorkijkjes waarbij de ruimte in het blok een extra dynamiek krijgt. In deze compacte structuur vormt de Brede school de wand gericht naar het stedelijke plein aan de noordzijde.

De woningen

Naast de Brede school bestaat het complex uit 47 woningen rond en boven de school. Zo zijn er grote maisonnettes met dakterrassen gesitueerd boven de school. De woningen zijn bereikbaar via brede houten lopers over het dak van de school. Aan het water staan stadshuizen, bereikbaar vanaf een autoluwe straat. De toren die fungeert als landmark, heeft twee appartementen per laag. Georiënteerd, onder meer door grote balkons, op het weidse uitzicht.
Door het plaatsen van woningen op en naast de school wordt de grond dubbel gebruikt en de sociale veiligheid en levendigheid verhoogd. Daarbij is het wel belangrijk te onderkennen dat kinderen veel lawaai kunnen produceren. De woningen zijn daarom zodanig ontworpen dat de bewoners hiervan zo min mogelijk last ondervinden.
Het parkeren is overdekt opgelost tussen de twee woonblokken. Bovenop de garages wordt gespeeld.

 

 

  • exterieur (fotografie Joeri van Beek)
  • exterieur (fotografie Joeri van Beek)
  • exterieur (fotografie Inge Rosekrans)
  • exterieur (fotografie Peter de Ruig)
  • exterieur (fotografie Inge Rosekrans)
  • exterieur (fotografie Peter de Ruig)
  • interieur (fotografie Inge Rosekrans)
  • situatie