Rijksverzamelkantoor Zwijndrecht

Markant laboratorium hergebruiken


en verbouwen tot modern Rijkskantoor

Rijksverzamelkantoor Zwijndrecht

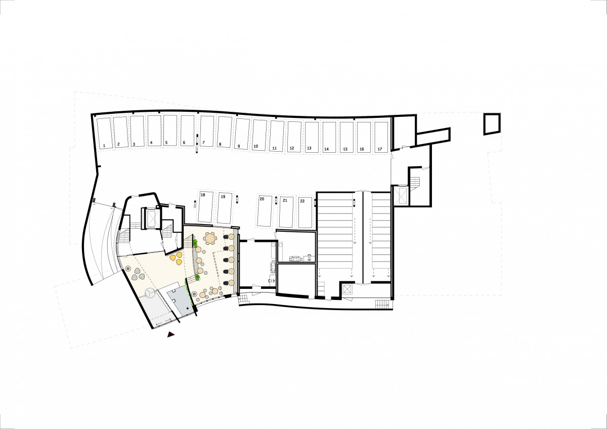
In opdracht van het Rijksvastgoedbedrijf wordt een markant gebouw van architect Ton Venhoeven in Zwijndrecht verbouwd van traditioneel kantoor- en laboratoriumgebouw tot een multifunctioneel inzetbaar Rijksverzamelkantoor. Waar voorheen de Nederlands Voedsel en Waren Autoriteit (NVWA) was gehuisvest komen 3 inspectiediensten. Slechts een klein laboratorium blijft behouden. Bestaande laboratoria worden kantoorruimten en alle kantoorruimten moeten worden ingericht volgens 'Het Nieuwe Werken'.

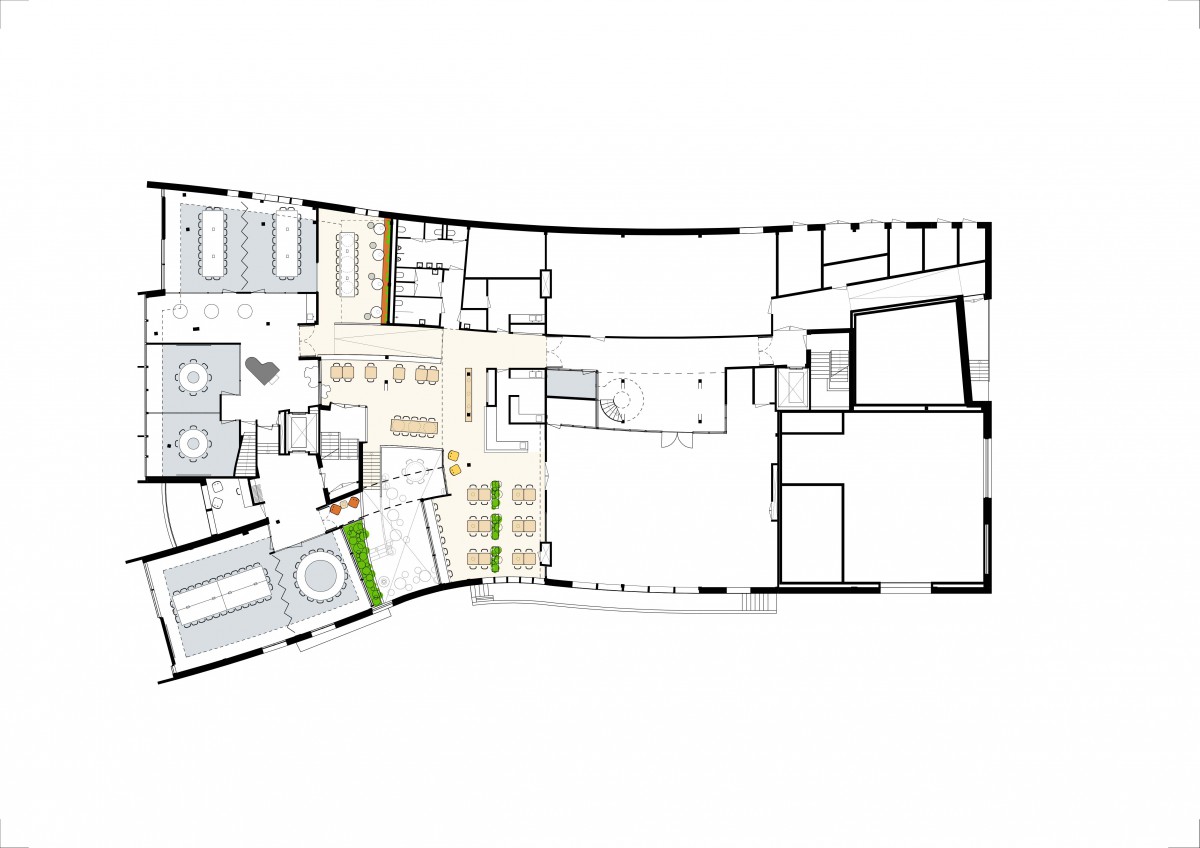
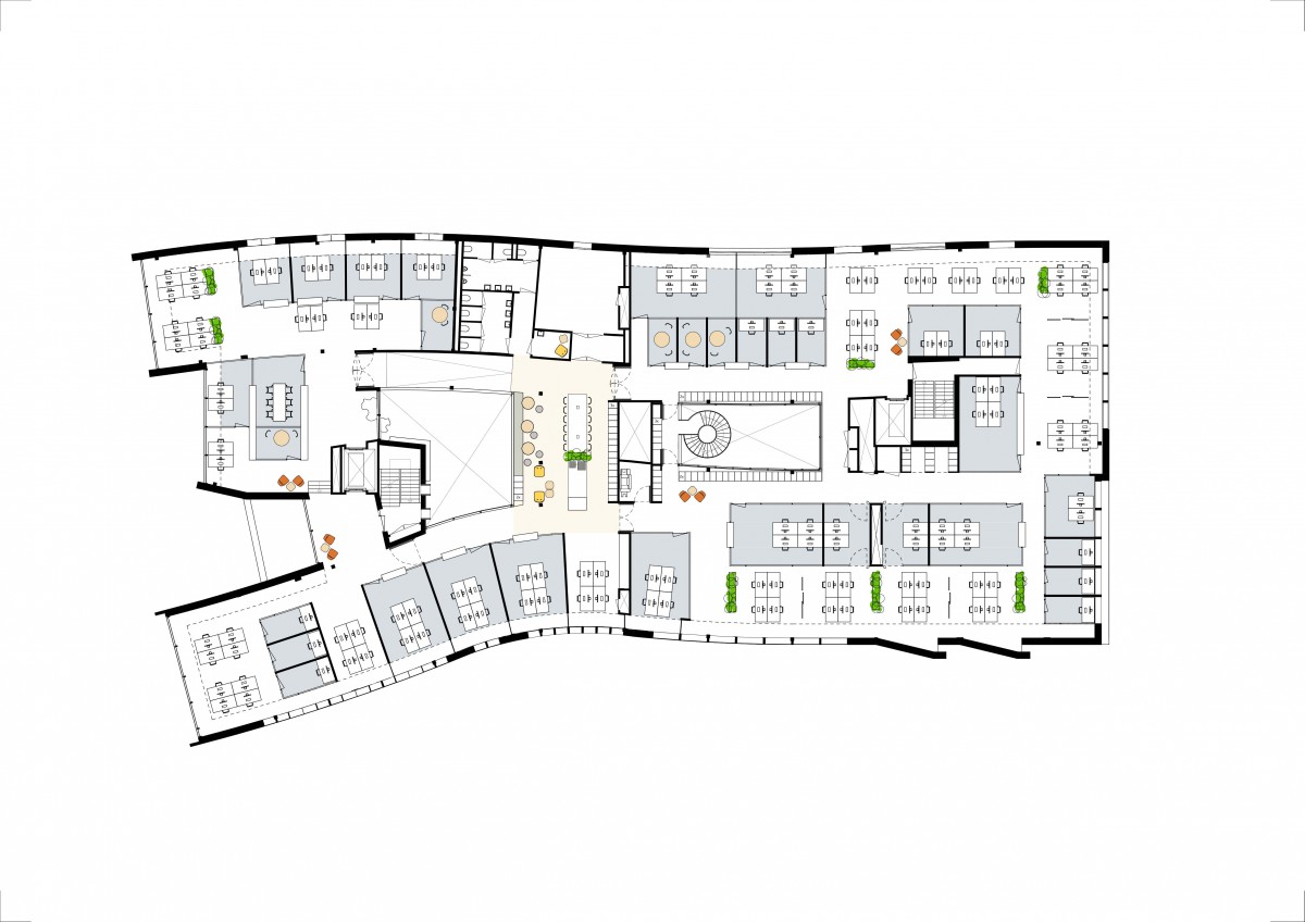
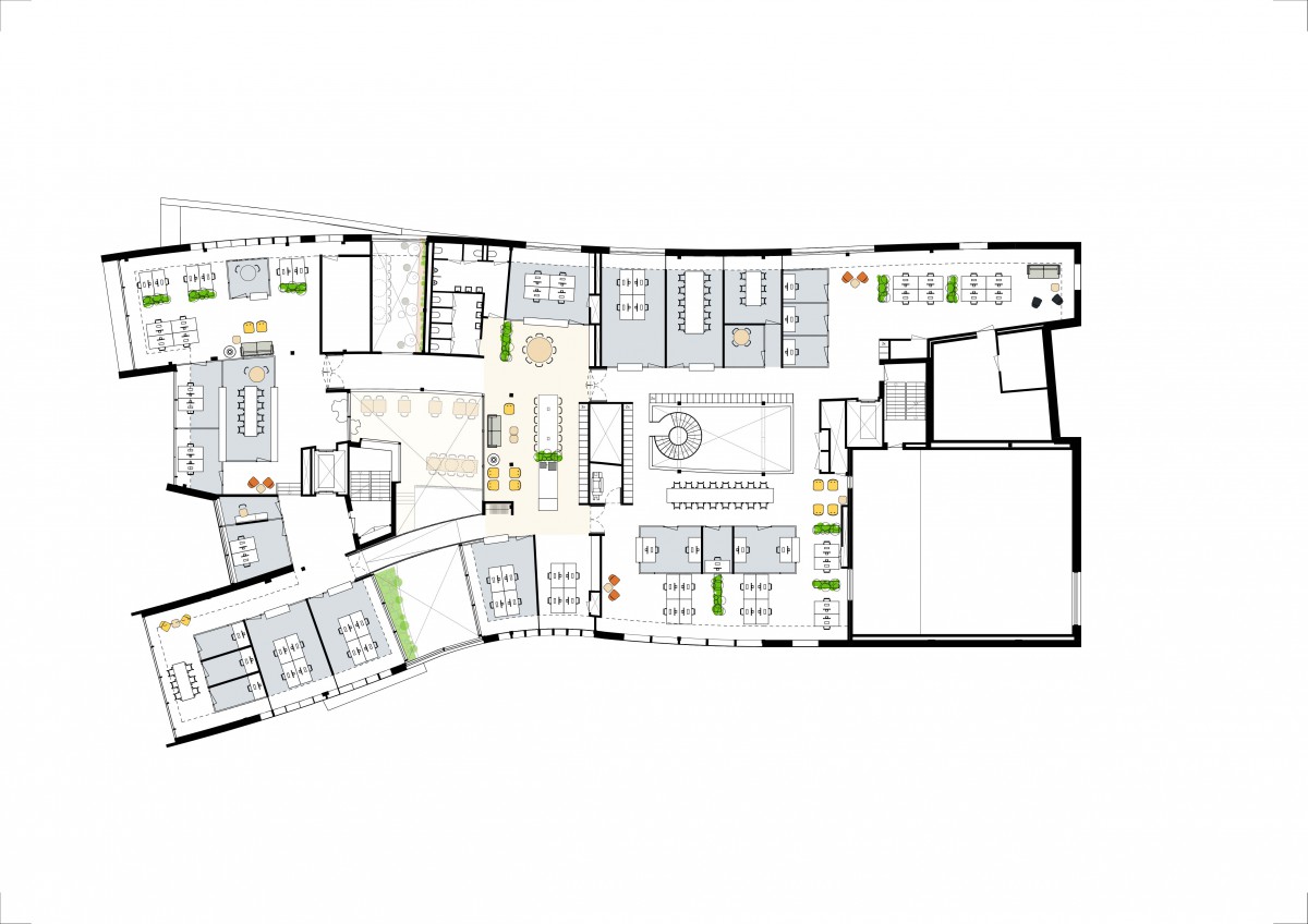
Na oplevering zullen de Nederlandse Voedsel- en Warenautoriteit (NVWA), de Inspectie Leefomgeving en Toerisme (ILT) en de Inspectie Sociale Zekerheid en Werkgelegenheid (iSZW) intrek nemen in het gebouw. Een nieuwe functionele indeling zorgt voor meer ontmoeting en kennisuitwisseling tussen de gebruikers. Centraal in het gebouw ligt het 'werkcafe'. Een ontmoetingsruimte met bedrijfsrestaurant en mogelijkheid om kortere tijd aan te landen. Er is een centraal vergadergebied waar ook bezoekers gemakkelijk hun weg vinden. Op de verdiepingen liggen de werkgebieden. Binnen het werkgebied spelen de zogenaamde 'ankerpunten' een belangrijke rol: ontmoetingsruimten waar facilitaire voorzieningen nabij gesitueerd zijn. Lockers, kasten, koffie, lounge en gelegenheid om met collega's op een informele manier te overleggen.


Dit ontwerp betreft een prijsvraag inzending voor een Design & Build opgave in samenwerking met aannemingsbedrijf WBC, HE-adviseurs, WSi-techniek, Mobius consult en Qbiq Systeemwanden en glasoplossingen. De inzending is na beoordeling geindigd op tweede plaats.

Het ontwerp is gemaakt op basis van uitgangspunten in het door het Rijksvastgoedbedrijf opgestelde beleid ten aanzien van Rijkskantoren, de FWR-Wijzer (Fysieke Werkomgeving Rijk) en daarnaast de uitgangspunten zoals vermeld in het rapport 'Het Nieuwe Rijkskantoor'. De FWR-Wijzer beschrijft het rijksbreed beleid voor de kantooromgeving van rijksambtenaren. Het schept de voorwaarden om flexibel, tijd-, plaats- en apparaatonafhankelijk (samen) te werken.


Credit beeldmateriaal: atelier PRO

  • hoofdentree met receptiebalie
  • ontvangshal begane grond
  • begane grond werkcafe
  • 1e verdieping werkcafe
  • lobby bij vergadercentrum
  • centraal ankerpunt voor ontmoeting
  • combinatie gesloten en half open werkplekken
  • open werkplekken
  • atrium met nieuwe trap
  • begane grond
  • eerste verdieping
  • tweede verdieping
  • derde verdieping
  • doorsnede ankerpunten en werkcafe
  • doorsnede vide werkcafe
  • doorsnede voormalige labs
  • kleuren en materialen