De Nieuwe Pijl, Wormerveer

Van oude veekoekenfabriek


naar zonnige woningen

De Nieuwe Pijl, Wormerveer

De Zaan in Noord-Holland is één van de oudste industriegebieden van Europa. Tegenwoordig staan de fabrieken hier leeg omdat bedrijven zijn vertrokken naar locaties buiten de stad. De oude karakteristieke industriële panden staan nu in vervallen staat op prachtige locaties aan het water. Heus Voeders uit Ede, de eigenaar van één van deze fabrieksterreinen, is van plan een transformatie naar woningbouw te realiseren. Er liggen al plannen om het Brokking-terrein als toplocatie voor woningbouw aan te merken. Omdat het gebied aan de Zaan ook binnen het Brokking-terrein past, is het realiseren van woningen een goede toevoeging aan de plannen. Kenmerkend voor het gebied is de voormalige veekoekenfabriek De Pijl uit 1930, ondanks de miserabele staat waarin zij verkeert. Deze fabriek wordt getransformeerd tot woningen.

In het ontwerp van Atelier PRO worden omliggende silo’s, bijgebouwen van de Pijl en een groot deel van de fabrieken uit de jaren ’30 die niet geschikt zijn voor nieuwe woningen, gesloopt. Van de oude fabriek blijven alleen de toren met de oude silo’s over. Dit zijn de meest kenmerkende delen van de fabriek. De toren is het beeldmerk van het nieuwe woongebouw en bevat bovendien één van de nieuwe trappenhuizen.

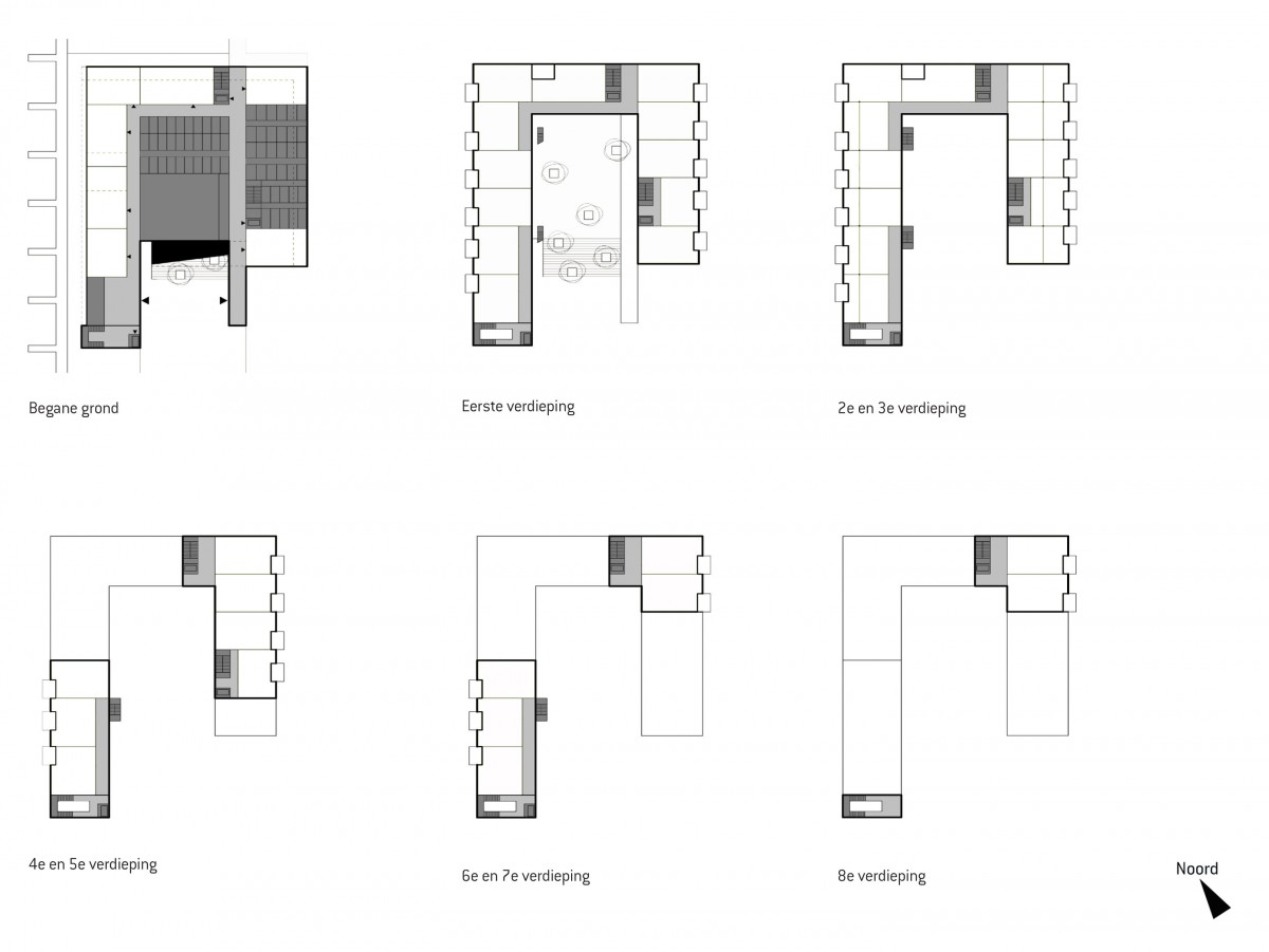
De footprint van het nieuwe gebouw is gelijk gehouden aan de oude veekoekenfabriek. Ook het volume volgt dezelfde karakteristieke trapsgewijze opbouw zoals de meesten uit de omgeving die kennen. Een grote verandering is het open maken van het gesloten fabrieks-bouwblok, en de verandering naar een U-vorm.. Dat levert zon georiënteerde woningen op, met bovendien allemaal een prachtig uitzicht. Op de begane grond van het bouwblok wordt plaats gemaakt voor bergingen. Hierdoor ontstaat een terras op de eerste verdieping dat als collectieve buitenruimte kan worden gebruikt en onderdeel wordt van de andere steigers rondom het gebouw. Bij het ontwerp van de woningen staat de woonkwaliteit voorop. Het blok bevat 69 appartementen die deels eenzijdig (en dus breed) en deels tweezijdig zijn georiënteerd. De ontsluiting wordt in het blok opgelost, galerijen worden hierdoor vermeden.

Het materiaalgebruik refereert aan de oude fabrieksarchitectuur door gebruik van metselwerk met zichtbare stalen hulpconstructies. Dit wordt aangevuld met hogesterktebeton balkons. Het dek en de omliggende steigers zijn in hout bedacht.

 

  • Exterieur
  • Exterieur
  • exterieur
  • Exterieur
  • Exterieur
  • exterieur
  • Situatie
  • Doorsnedes
  • Plattegrond