Interieur uitbreiding Metis Montessori Lyceum Amsterdam

Een school in het Oosterpark


les krijgen met uitzicht op het groen

Interieur uitbreiding Metis Montessori Lyceum Amsterdam

In opdracht van Montessori Scholengemeenschap Amsterdam werkte atelier PRO aan de uitbreiding van het bestaande en in 2013 geheel gerenoveerde schoolgebouw in het Oosterpark. Het Metis Montessori Lyceum (MML) kreeg naast de monumentale 19e eeuwse bestaande school een geheel nieuwe uitbreiding met aula, kleedlokalen, fietsenstalling en 3 verdiepingen onderwijsruimten. Naast het bouwkundige ontwerp voor deze uitbreiding is atelier PRO ook gevraagd om een passend interieurontwerp te maken voor het nieuwe schoolgebouw.

Visie van het MML
Op het MML kunnen leerlingen terecht voor alle niveaus van MAVO tot en met VWO. Een school die haar leerlingen wil opleiden tot wereldburgers, met aandacht voor de kansen en talenten van individuele leerlingen. In lijn van de Montessori gedachte heeft de school ervoor gekozen om in de uitbreiding veel ruimte te maken voor open ontmoetingsruimten.

De school moet een ruimte zijn waar iedereen elkaar persoonlijk kent en elkaar makkelijk kan aanspreken. Daarnaast is er een groeiend besef dat de school niet de enige plaats is waar men kennis opdoet. Een leven lang leren betekent dat veel mensen ook buiten school ruimten moeten krijgen om kennis en vaardigheden te verwerven.

Veranderingen in de onderwijshuisvesting
Veranderingen in het onderwijs zijn aldoor. En dat is niet verbazingwekkend, immers de maatschappij verandert snel en het onderwijs verandert mee. Kennisdeling en het faciliteren van inspirerende ontmoetingen komen steeds meer centraal te staan. De kwaliteit van het interieur is daarbij bepalend. De interactie tussen gebouw en gebruiker heeft een grote invloed op gedrag en leerprestaties. Dus het schoolgebouw en de inrichting daarvan zijn bij uitstek de dragers van een passende schoolcultuur. Het interieur moet zijn gebruikers - de leerlingen en de docenten - koesteren en tegelijkertijd het ‘schoolbedrijf’ in staat stellen om gemakkelijk aan te passen aan nieuwe kansen, nieuwe processen en lesmethoden. Bovendien moet de school - en met name het interieur waar mensen toch verblijven - een representatieve weergave zijn van de identiteit van de organisatie. De aantrekkelijkheid van het interieur bepaalt voor een groot deel ook de duurzaamheid ervan.

Circulatieruimten: synergie tussen ontmoeting en onderwijs
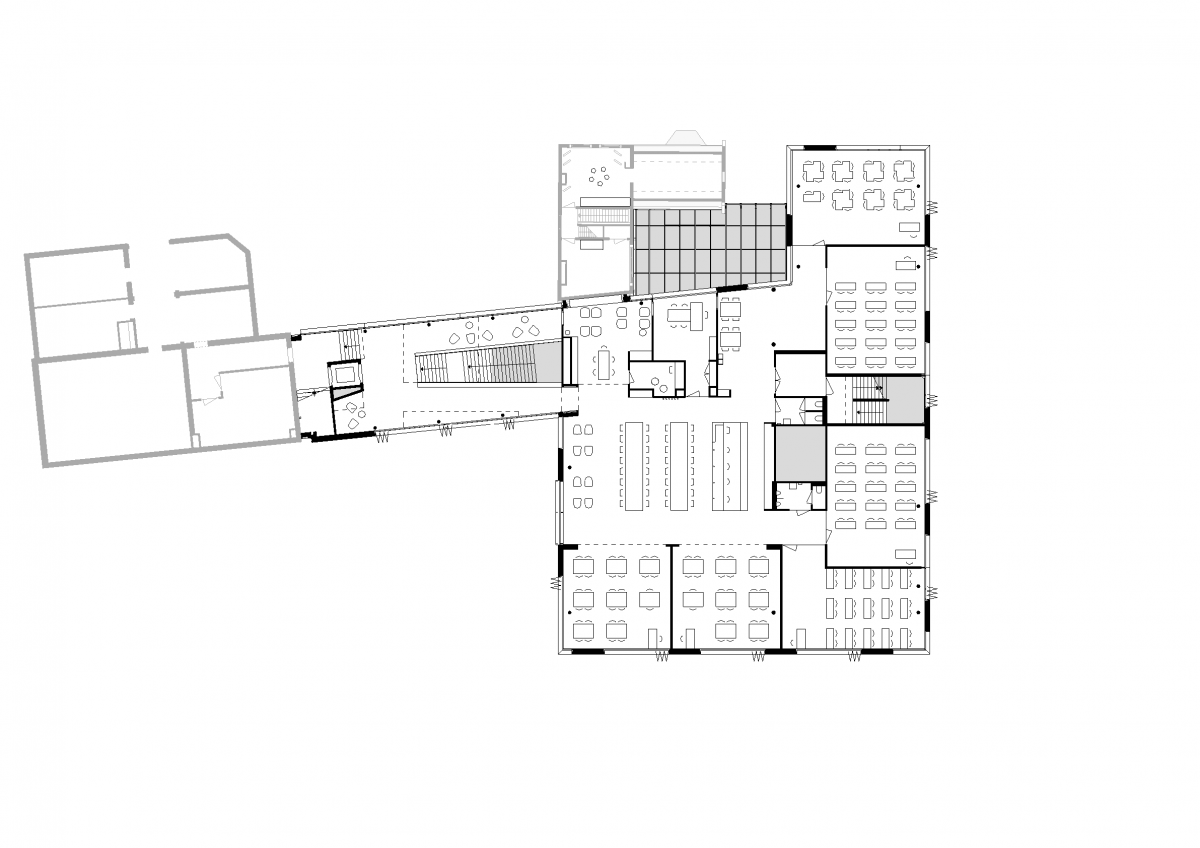
Bij het MML staat onmoeting centraal, en dat begint al bij de stedelijke omgeving en de unieke ligging - aan de rand van het Oosterpark. De circulatieruimte speelt in dit interieurontwerp daarom een belangrijke rol. De leerlingen betreden de school via een besloten patio: de eerste ontmoetingsruimte waar kennis en vaardigheden worden uitgewisseld. Deze ruimte hoort nadrukkelijk ook bij het (interieur)ontwerp. Op de begane grond ligt de grote centrale aula en op de verdiepingen bereiken leerlingen de lokalen via het centrale leerplein. Onderwijsruimten worden sociale zones waar leerlingen elkaar tegen komen en kruisbestuiving plaatsvindt.


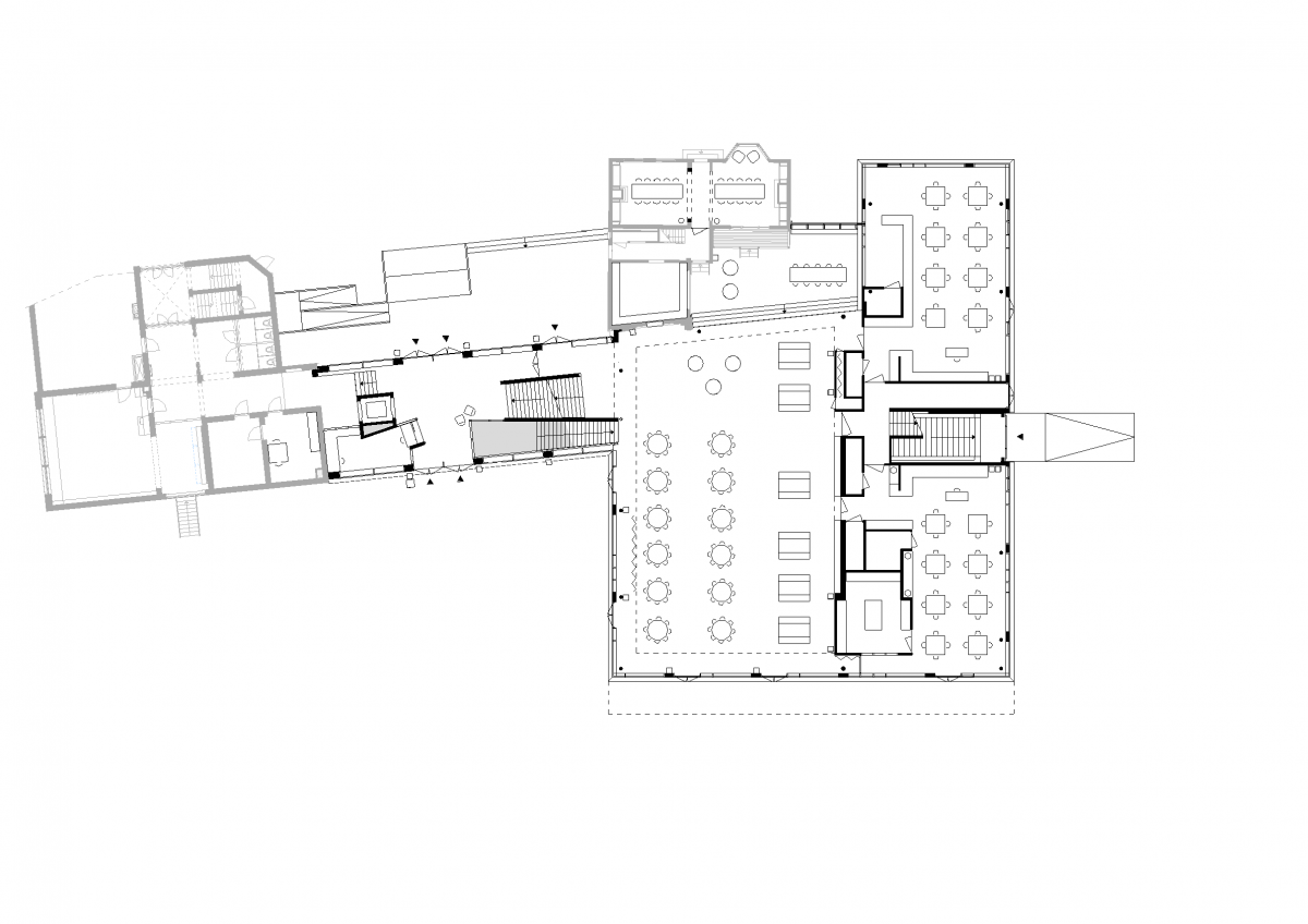
Leerpleinen met flexlokalen op de verdiepingen
Bijzonder in dit ontwerp is de combinatie van ruime, grote leerpleinen op de verdiepingen voor individueel werken met daaraan gekoppeld een tweetal zogenaamde ‘flexlokalen’. De lokalen kunnen desgewenst gekoppeld worden aan de centrale ontmoetingsruimte, het leerplein. Dit levert een aangename flexibiliteit op: samen als het kan, alleen als het moet. Het meubilair in de flexlokalen is hier ook op afgestemd. De traditionele ‘leerlingsetjes’ van 1 tafel en 1 stoel hebben hier plaatsgemaakt voor een comfortabele stoel op wielen met een draaibaar PC tablet. Leerlingen en docenten kunnen in een handomdraai de ruimte aanpassen van een klassikale presentatie naar een project-opstelling met kleine separate groepen. Het MML is een van de eerste schoolgebouwen in Nederland waar dit meubilair op deze schaal wordt toegepast.


Twee technasium ateliers op de begane grond

Op de begane grond heeft de school ruimte gemaakt voor twee grote ateliers voor het Technasium. Centraal in deze onderwijsvorm staan de betavakken. De ruimten zijn specifiek ingericht op de eisen die worden gesteld aan het examenvak Onderzoek & Ontwerpen. Zo zijn in deze ruimte grote, hoge groepstafels geplaatst, die (op wielen) in elke gewenste opstelling verzet kunnen worden. Samenwerken is een belangrijk leerpunt. Met een atelier voor Biologie en een tweede atelier voor Robitica kiest het MML voor een praktijk- en toekomstgerichte onderwijsvorm. Ideaal gelegen op de begane grond voor maximale exposure, een heus visitekaartje voor het MML.
In de voormalige monumentale dienstwoning is een stijlkamer ingericht waar de projecten en producten van de technasium leerlingen gepresenteerd kunnen worden aan het bedrijfsleven.


Aula transformeert in theater

Op een magnifieke plek aan het Oosterpark, met grote glazen dubbele deuren naar buiten, kunnen leerlingen ook buiten lestijden samenwerken aan projecten. Een diverse opstelling van meubilair en inrichtingselementen bieden de leerlingen optie om tussen hoge en lage, tijdelijke en langere termijn zit- en werkplekken te kiezen. Op bijzondere dagen wordt de aula omgetoverd tot theater, met podium, theatertechniek en publieksopstelling. De ruimte is multifunctioneel inzetbaar, zonder te kort te doen aan het dagelijks gebruik: comfortabele overblijf- en ontmoetingsplek. De uitgifte balie en keuken van de aula zijn passend gesitueerd in de keuken van de voormalige dienstwoning. 

Architectuur en interieur: een geheel

De inrichting en architectuur van het nieuwbouwdeel van het MML is een samenhangend geheel. Architectuur en interieur versterken elkaar en vormen een aanvulling op elkaar zodat goed functionerende en mooie ruimten ontstaan. Interieur en meubilair kregen een uitstraling passend in de uitbreiding en brengt een stuk identiteit en herkenbaarheid. Het klassieke type schoolgebouw zal evolueren in een onderwijslandschap dat een leven lang leren mogelijk maakt en inspeelt op de activiteiten die nodig zijn bij het verwerven van kennis en vaardigheden.


PUBLICATIES

Schooldomein inspiratieboek 2015-2020 p410-413
Gebouwd in Amsterdam p200
Stedenbouw Editie 743 p33-37
Stedenbouw.nl juni 2017
Architectenweb 2016 p 40-45
Het Parool

 

  • Entreegebied © René Souverijn
  • Leerplein 1e verdieping © René Souverijn
  • Interieur © René Souverijn
  • Transparante luiken © René Souverijn
  • Overloop van het trappenhuis is ook ontmoetingsplek © Jan Paul Mioulet
  • Volledig buitenuitzicht rondom op overloop © René Souverijn
  • Entreegebied en overloopgebied © René Souverijn
  • begane grond
  • 1e verdieping
  • kleuren en materialen
  • kleuren en materialen