Huis der Gemeente Overbetuwe

monoliet en robuust


met een hart van groen

Huis der Gemeente Overbetuwe

Centraal in het nieuwe stedenbouwkundige plan van het stationsgebied in Elst  komt het Huis der Gemeente Overbetuwe voor de in 2001 samengevoegde Elst, Heteren en Valburg. Nabij de oude dorpskern markeert het robuuste gebouw voortaan het regionale vervoersknooppunt, dat het dorp verbindt met de daaromheen gelegen nieuwe uitbreidingswijken.

Centraal in de open ruimte staat het Huis der Gemeente, uitgevoerd in een lichte steen met warme en levendige leemtinten in afwijking van de terracottatinten van de woon- en kantoorgebouwen in de omgeving. Hierdoor profileert dit alzijdig gebouw zich duidelijk als de belangrijkste functie op het plein. De architectuur ademt de monoliete sfeer van de baksteenarchitectuur van het interbellum, zonder deze letterlijk te kopiëren.


Niet alleen de steen geeft het gebouw zijn voorname voorkomen. Hoekverdraaiingen zorgen voor een elegante horizontale geleding van de hoofdvorm, waardoor het gebouw een alzijdige representatieve uitstraling krijgt. De oostzijde staat resoluut in het water, terwijl de noordzijde zich laat vertalen als een uitgesproken pleingevel met een moderne toren. Aan de zuidkant accentueert de geleding een tweede entree naar een parkeervoorziening.


Het gebouw schikt zich door het materiaalgebruik en de detaillering goed naar de bebouwingstypologieën in Elst. De verticale ramen en de kloeke toren geven de gevels een monumentale en statige uitstraling. Dit en de diepliggende kozijnen met afgeschuinde neggen, accentueren de verfijnde plastiek van de gevels. Daarnaast zorgen ze binnen voor meer daglicht en laten ze de raamopeningen ’s avonds in het kunstlicht mooi schitteren, versterkt door de gladde en licht glanzende gevelsteen.

In de versteende omgeving vormt een binnentuin in twee lagen  in het hart van het gebouw een centraal rustpunt. De tuin is rondom voorzien van begroeide gevels, zodat men zowel vanuit de centrale hal als de kantoren kan genieten van groene uitzichten.

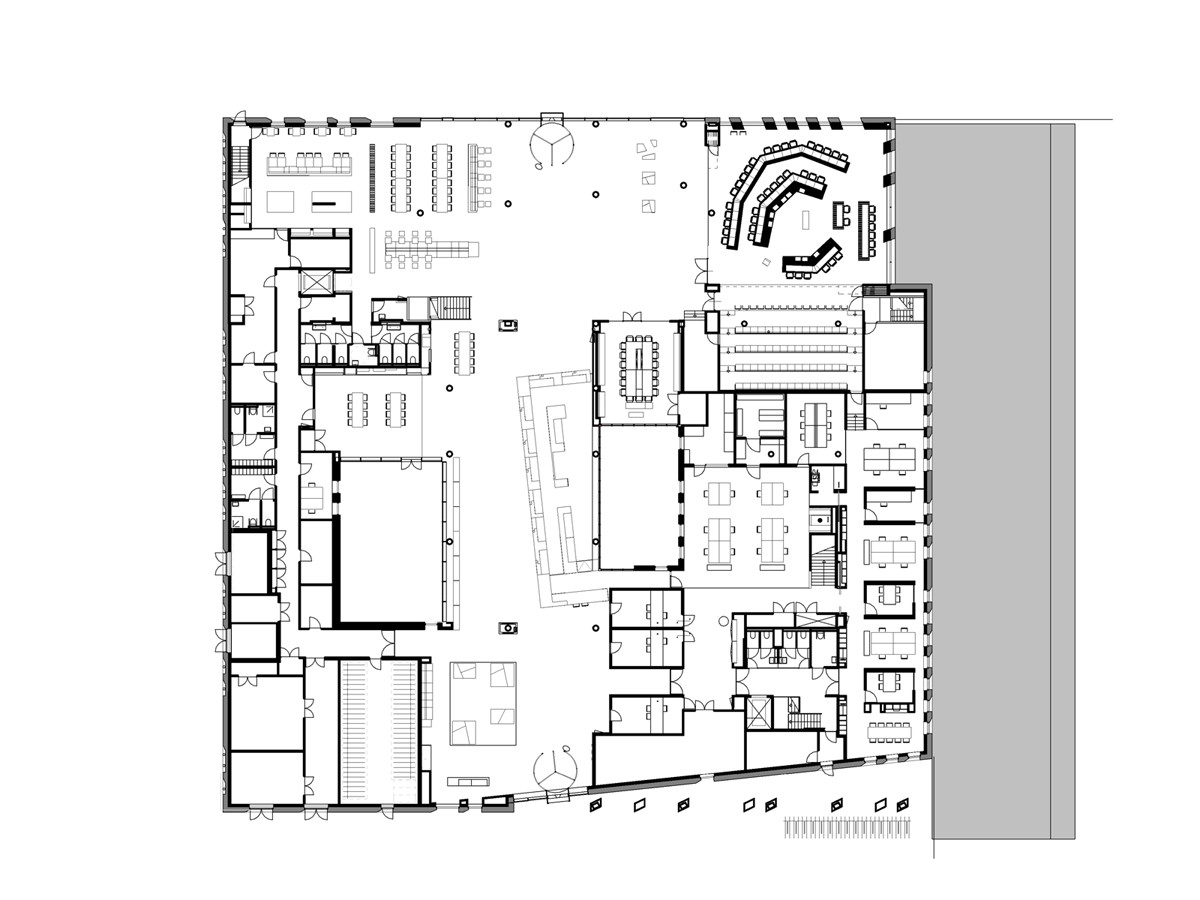
Functioneel gezien bestaat het gebouw uit twee zones: één voor het publiek en één voor de medewerkers. De publiekstoegankelijke zone bestaat onder andere uit het baliegebied, waar  twee patio’s zorgen voor ruim daglicht. Ook de hoge publieke entreehal met vide is hier onderdeel van, en verbindt de begane grond met het vergadercentrum en de bestuurszone op de eerste verdieping. Aan de hal liggen tevens de voorlichting- en vergaderruimtes en het restaurant. Goed zichtbaar gepositioneerd, op de hoek onder de toren, ligt de Raadzaal. De beveiligde personeelszone is juist meer afgeschermd en bevindt zich achter de balies en op de verdiepingen met een dakterras voor het personeel. In het gehele gebouw ligt de nadruk op ruimtelijkheid en toetreding dan wel beweging van licht. Aanvullend heeft het interieur een haast monastieke sfeer, met veel lichte en natuurlijke materialen geïnspireerd op de omgeving.

In navolging op het Gemeentehuis in Bronckhorst is de duurzaamheidambitie wederom uitzonderlijk hoog: GreenCalc score A+, 250 punten. Om dit te bereiken is vooral gekozen voor een zeer goede isolatie (Rc 6,5m2K/W), intelligente energiezuinige installaties (zoals CO2 gestuurde luchtroosters en warmte-koudeopslag), een relatief compacte gebouwvorm en uitgekiend materiaalgebruik.

Door tussenkomst van een juridisch discussie tijdens de bestemmingsplanprocedure heeft het college van B&W afgezien van de uitvoering van een nieuw gemeentehuis. Het college beraadt zich over haar vervolgstappen.

Het interieur van het Huis der Gemeente is tevens door atelier PRO ontworpen.

  • atelier PRO
    entree noord
  • atelier PRO
    entree zuid
  • atelier PRO
    werkplekken in centrale ruimte van kantooromgeving
  • atelier PRO
    restaurant
  • atelier PRO
    raadzaal
  • atelier PRO
    balie vergunningenruimte
  • atelier PRO
    commissiekamer
  • atelier PRO
    canyon
  • atelier PRO
    plattegrond
  • atelier PRO
    begane grond
  • atelier PRO
    eerste verdieping
  • atelier PRO
    tweede verdieping
  • atelier PRO
    derde verdieping