Inrichtingsplan en renovatie Stadhuiskwartier Deventer

het nieuwe wachten


naast het nieuwe werken

Inrichtingsplan en renovatie Stadhuiskwartier Deventer

Atelier PRO heeft de inrichtingsplan gedaan voor het oude en nieuwe gebouw en de restoratie/renovatie van het nieuwbouw. In ons ontwerp voor het Stadhuiskwartier staat het vormgeven van keuzemogelijkheden centraal. Mensen die hier werken, kunnen kiezen uit werkplekken met een grote variatie. Bijvoorbeeld een short-stay plek: hier zit je max 2 uur. En ook als bezoeker heb je keuzes, zoals in de publiekshal. Wil je je paspoort op komen halen? Dan neem je plaats op een houten bank. Als voorbereiding op een langere afspraak kun je je terugtrekken in een rustige hoek. Dit hebben wij 'Het Nieuwe Wachten' genoemd.

Atelier PRO was geselecteerd uit 4 inzendingen om het interieurontwerp te maken voor het nieuwe Stadhuiskwartier te Deventer. De gemeente Deventer stelt flexibiliteit, duurzaamheid, samenwerking en interactie als belangrijke uitgangspunten voor het interieur.

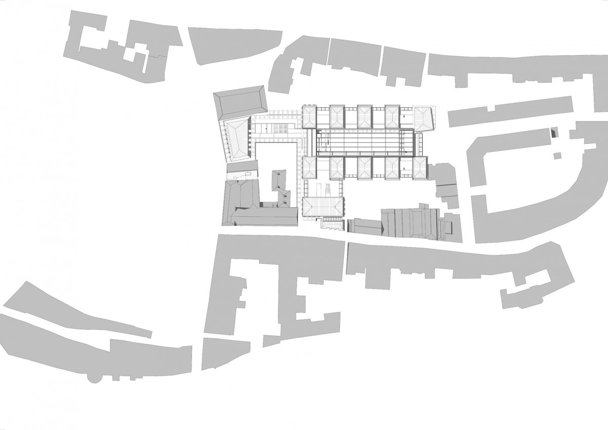
Het Stadhuiskwartier ligt tussen het Grote Kerkhof, Polstraat, Burseplein en Assenstraat. Het plan bevat een deel nieuwbouw (ca. 24.000 m² BVO) en een deel renovatie, restauratie en verduurzaming van bestaande rijksmonumenten (ca. 4.500 m² BVO). De markante nieuwbouw, naar ontwerp van Neutelings Riedijk architecten, voegt zich respectvol naar de bestaande historische bebouwing. De gemeente wilde een voorbeeld zijn op het gebied van duurzaam bouwen en had de ambitie om een gebouw te realiseren met BREEAM-score excellent.


Democratie en bestuur in Deventer zijn al eeuwenlang verbonden aan deze prachtige plek. De nieuwbouw betekent een grote kwaliteitssprong, niet alleen voor de gemeentelijke organisatie, maar ook voor de binnenstedelijke kwaliteit op deze locatie. Met het Stadhuiskwartier wil de gemeente de eigen organisatie bijeen brengen aan de Grote Kerkhof en bovendien een centraal ontmoetingspunt creëren. Publieke ruimten zijn zodanig ingericht dat ze ook te gebruiken zijn voor tentoonstellingen, debatten en symposia. Het interieurontwerp was hierin leidend.

Activiteit-gerelateerde werkplekken
De gemeente wilde met haar nieuwe kantooromgeving aansluiten op het principe van nieuwe werkomgevingen en koos daarom in het interieur voor een flexibele kantoorindeling. De activiteitgerelateerde werkplekken dragen bij aan innovatief, participatief en resultaatgericht werken. Medewerkers kunnen flexibel en vrij van plaats en tijd werken, je kiest je plek op basis van je wensen van dat moment. 

We zorgen voor veel variatie door zones te maken. Per zestig werkplekken is er een ‘huiskamer’ geplaatst, dicht bij de hoofdroute van het gebouw. Hier hang je je jas op, drink je koffie, klets je met je collega’s over het weekend en eet je taart als er iemand jarig is. Ook zijn er plekken waar je kunt zitten om een tekst te lezen, collega’s te ontmoeten of om te vergaderen. Verder weg van de hoofdroute wordt de werkvloer rustiger. Van een levendige plek waar je nog af en toe met een collega praat, tot stille plekken aan de uiteinden van het gebouw. Die overgang van dynamiek naar rust komt tot stand door de indeling van de werkvloer, zonder dat daar bordjes voor nodig zijn. We hebben onder andere vrijstaande ruimtes op de werkvloeren geplaatst, met daarin afgesloten concentratieplekken en vergaderplekken. Door het opdelen van de vloeren in kleinere delen is het ook daartussen rustiger.

Interieur-specials
In het ontwerp van atelier PRO is oriëntatie gekoppeld aan interieur-specials, zogenaamde ‘gouden eieren’, die herkenbare ontmoetingsplekken vormen. De meubels bevatten benodigde faciliteiten zoals stroompunten en zijn flexibel aanpasbaar. Kleurgebruik refereert in navolging van de historische bebouwing naar pigmenten uit de 17e eeuw, zoals ultramarijnblauw, indigo, omber, kraplak en loodtingeel.

Gemoedsrust
Atelier PRO heeft daarnaast ‘Het Nieuwe Wachten’ concept ontwikkeld en toegepast in de openbare publiekshal. Interieurcomfort uit zich in navolging van wachttijd, zodat de wacht-plek gekozen kan worden bij gewenste gemoedsrust. Zakelijk meubilair voor bezoekers met haast, en een meer zacht interieur voor rustige plekken waar langer wordt verbleven. De functionele indeling van de publiekshal is dus net als ‘Het Nieuwe Werken’ gerelateerd aan de activiteiten waarbij zichtbaarheid, overzicht en duidelijke wachttijdaanduiding van groot belang zijn. Het interieurontwerp ondersteunt hierin de bedrijfsvoering en het hoge niveau van service en ‘hostmanship‘ van de gemeente Deventer.

Vingerafdruk
Beeldend kunstenaar Loes ten Anscher heeft aluminium raamwerken gemaakt van de vingerafdrukken van honderden Deventenaren. Hun duim, vinger of zelfs teen is daarmee vereeuwigd en hangt in het nieuwe gebouw. In totaal waren er 2300 Deventenaren uitgenodigd om hun vingerafdruk af te staan. Van alle scans is een vingerafdruk van klei gemaakt. Deze kleipatronen gingen naar een gieterij, waar er zandmallen van zijn gemaakt. Uiteindelijk is vloeibare aluminium in de mal gegoten en was na het afkoelen het raamwerk klaar.

 

ANDERE PROJECTEN MET ACTIVITEITGERELATEERDE WERKPLEKKEN
Atelier PRO heeft veel ervaring met kantoren volgens nieuwe werkomgevingen. Onder meer het gemeentehuis in Bronckhorst en in Zeist maar ook de regiokantoren van netbeheerder Enexis zijn zo ontworpen en gerealiseerd. 
Lees ook onze visie op de nieuwe 'werken'lijkheid.


Publicaties

Bestinteriors.nl
Architectuur NL, september 2017
Stadhuiskwartier Deventer een Historische plek klaar voor de toekomst p180-85
INTERNI & Decor juli 2016
Een Agora voor Deventer Architectenweb, maart 2016
Bouwkwaliteit in de praktijk, juli 2016
Werk & Veiligheid, Ontwerpen voor Het Nieuwe Werken, Evelien Pieters, 05.04.2013
Architectuur.org, september 2012
PI project & interieur, mei 2016
De kozijnloze oplossingen van Qbiq passen bij ons idee van verstilde eenvoud

  • Centrale hal (foto Eva Bloem)
  • Eva Bloem fotografie
    Centrale receptiebalie (foto Eva Bloem)
  • Eva Bloem fotografie
    Lobby op de 1e verdieping (foto Eva Bloem)
  • Eva Bloem fotografie
    Restaurant & werkruimten (foto Eva Bloem)
  • Eva Bloem fotografie
    Trouwzaal (foto Eva Bloem)
  • Gangen in oude stadhuis (foto Eva Bloem)
  • Voormalige raadzaal (foto Eva Bloem)
  • Overlegruimte (foto Eva Bloem)
  • Commissiekamer (foto Eva Bloem)
  • Werkruimten nieuwbouw (foto Eva Bloem)
  • Werkruimten nieuwbouw (foto Eva Bloem)
  • Werkruimten nieuwbouw (foto Eva Bloem)
  • Werkruimten nieuwbouw (foto Eva Bloem)
  • Werkruimten nieuwbouw (foto Eva Bloem)
  • Werkruimten nieuwbouw (foto Eva Bloem)
  • Publieksplein (foto Eva Bloem)
  • Publieksplein (foto Eva Bloem)
  • Publieksplein (foto Eva Bloem)
  • Publieksplein (foto Eva Bloem)
  • Eva Bloem fotografie
    Het Nieuwe Wachten (foto Eva Bloem)
  • Situatie