Het Bushuis, Amsterdam

Binnenhof als hart


voor amorfe complex

Het Bushuis, Amsterdam

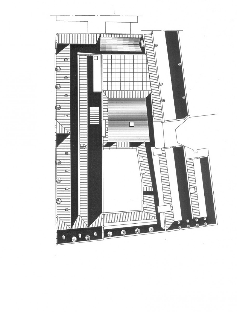
Het zogeheten Bushuis, op de hoek van de Kloveniersburgwal en de Oude Hoogstraat, heeft atelier PRO - samen met een deel van het naastgelegen Oost-Indisch Huis - verbouwd tot bibliotheek van de Faculteit voor Gedragswetenschappen van de Universiteit van Amsterdam.

Het huidige Bushuis is eind negentiende eeuw gebouwd in neo-stijl. Het gedeelte dat wordt aangeduid als het Oost-Indisch Huis is veel ouder, maar heeft in de loop van de tijd veel van zijn oorspronkelijke luister verloren. Voorafgaand aan onze opdracht was er wel een reconstructie aangebracht van zogenoemde Bewindhebberskamer van de VOC.

 

De hoofdingang van de bibliotheek bevindt zich aan de Kloveniersburgwal. Door het wegbreken van niet-dragende muren en het aanbrengen van grote openingen in de draagmuur in de lengterichting van het gebouw, is de inwendige structuur van het Bushuis open en afleesbaar gemaakt. De zolder van het Bushuis is nu een grote ruimte voor studieplaatsen met een entresol; de oude houten vloerbalken zijn in het zicht gelaten.

Bij de ontsluitingsstructuur is een onderscheid gemaakt tussen een beveiligd deel en een gebied dat - ook 's avonds - vrij toegankelijk is. De bibliotheek is tevens te bereiken via het Oost-Indisch Huis dat in de nieuwe ontsluitingsstructuur is opgenomen. De integratie van de bibliotheek met de rest van de faculteit wordt bekroond door een glazen overkapping van de tweede binnenhof. Met deze overkapte binnenhof, die is ingericht als caféterras, heeft het amorfe complex een hart gekregen.

  • Luuk Kramer
    voorgevel
  • Luuk Kramer
    monumentale voordeur
  • Luuk Kramer
    raam detail
  • atelier PRO
    geveldetail
  • Luuk Kramer
    Hof
  • Luuk Kramer
    deur dicht
  • Luuk Kramer
    deur open
  • Luuk Kramer
    interieur entreehal
  • Luuk Kramer
    vide
  • Luuk Kramer
    werkplekken
  • Luuk Kramer
    brug
  • Luuk Kramer
    gang
  • Luuk Kramer
    trappenhuis
  • Luuk Kramer
    mensen in het binnenhof
  • Luuk Kramer
    gerenoveerde zaal
  • atelier PRO
    Situatie