Kleinschaligheid centraal in vernieuwde Carmel College in Raalte

Atelier PRO heeft voor de Havo/VWO leerlingen van het Carmel College in Raalte een geheel vernieuwde leeromgeving ontworpen. Dit ontwerp bevat de architectuur en het interieur. De buitenruimte is in samenwerking met Oase Stedenbouw en Landschap ontworpen.

 
De opgave
Doel was om voor de ruim 1500 leerlingen een school te ontwerpen die klein en prettig in gebruik aanvoelt. Een school waar de leerling centraal staat. Om dit doel te bereiken is bijzondere aandacht besteed aan kleinschaligheid. Het resultaat is een gebouw met aangename en prikkelende leerplekken, waar binnen en  buiten natuurlijk in elkaar overgaan.
 
Ingrid Hegeman, sectordirecteur van het Carmel College over de nieuwe school:  “Ons onderwijsconcept vormde het uitgangspunt. Dorte Kristensen en Martijn de Visser van atelier PRO maakten een goed geslaagde vertaling naar leeromgeving en gewenste faciliteiten. Een belangrijke opdracht was ook om binnen en buiten te combineren, omdat onze locatie in een prachtig park ligt. Het is een ingetogen en ruimtelijk gebouw geworden, klein van schaal en gebaseerd op de onderwijsvisie.”

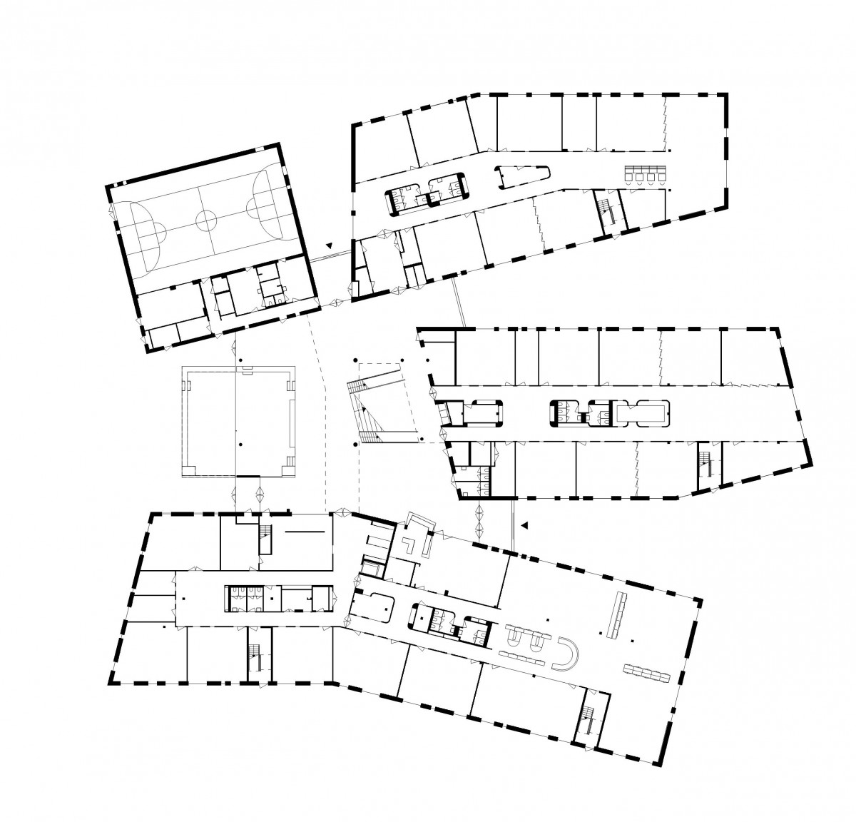
Domeinen
Om de gewenste kleinschaligheid te bereiken is het gebouw opgedeeld in zes ‘domeinen’. In de domeinen werken leerlingen en docenten in kleine teams met elkaar samen. De domeinen zijn allemaal direct vanuit de centrale aula te bereiken. De opzet heeft de vorm van een hand. De handpalm is de aula en de vingers zijn de domeinen. De vingers zijn gespreid zodat het gebouw zich opent naar het groene landschap.

Coulisselandschap
Het ontwerp van de buitenruimte is geïnspireerd door het coulisselandschap van Salland; daarin wisselen open en omsloten gebieden elkaar af. De hoofdentree ligt aan een groot, zonnig plein en is makkelijk te bereiken via de hoofdtoegangsweg. Aan de noord- en westzijde liggen twee pleinen die respectievelijk verbonden zijn met het sportveld en de naastgelegen VMBO-school. Fietsenstalling en parkeerplekken zijn landschappelijk vormgegeven en omsloten door hagen. In het gebouw is door de grote glazen puien steeds uitzicht op de groene omgeving.

Uitnodigende werkplekken
Het lichte interieur staat in teken van het onderwijsconcept. Ook buiten de lokalen zijn overal plekken gecreëerd die uitnodigen om te leren. Die zijn heel divers: van informeel in groepjes tot afgezonderd geconcentreerd.  Materialen en kleuren zijn licht en natuurlijk met een accentkleur per domein.Ook zijn er een aantal meubels door atelier PRO speciaal voor het project ontworpen, zoals grote loungebanken, die verrijdbaar zijn en op te delen zijn in vier kleinere banken.

Geïntegreerd geheel
Van schoolgebouw tot klaslokaal, van binnen en buiten, van entree tot stilte-werkplek, van groot tot klein. Het nieuwe Havo/VWO van het Carmel College vormt een compleet en geïntegreerd geheel. Filosoof Bas Haring sprak tijdens de opening: “We hebben hier een heel mooi schoolgebouw, iets publieks wat er goed uitziet en ik word daar heel erg blij van.”

Meer details over dit projectontwerp vind je op de Carmel College projectsite