Campus Scolaire Echternach, Luxemburg

Hybrid construction in wood and concrete


for an innovative educational building

Campus Scolaire Echternach, Luxemburg

For Campus Scolaire Echternach, Atelier PRO created an exceptional and sustainable school complex in Echternach, Luxembourg, in collaboration with WW+. The building comprises a public primary school and a school for special education, as well as spaces for after-school care and a large canteen for the pupils. By combining these different functions in one building, we’ve managed to create a compact educational complex that is unique for Luxembourg. We deliberately chose wood as a construction material, and raised the building’s plinth due its location in a bend of the river. The result is a building that sets an example: a community school with shared spaces which is both sustainable and climate resilient.

A new type of school building for Echternach

Echternach is a small municipality on the border between Germany and Luxembourg. With its old patrician houses, narrow streets and ancient city walls, the town is known for its medieval character. At the entrance to Echternach's pedestrian area, directly bordering the historical town centre and the river, was the small plot designated to house the new school campus. This campus was needed because of a growing number of pupils, which meant that the former primary school no longer had sufficient space. The new campus houses the upper school as well as a school for special education, a canteen and an after-school care.

Multiple use of space

In Luxembourg, primary schools usually do not comprise an after-school care, and schools for special education are not integrated into the ‘regular’ education system. For the Campus Scolaire, however, the brief specifically called for an 'integrated model', with the different institutions sharing a single building; it also called for a shared use of space - not only because the size of the plot was limited, but also because this was a specific wish of the client, the municipality of Echternach. In addition, this is also part of atelier PRO's trademark approach – community schools are one of our main fields of expertise, and particular for the Dutch context.

Together towards a new educational campus

In order to get all involved parties on board, teachers, carers, parents and educators were all involved from the earliest stages of the design process, by means of a series of workshops. Aim of these workshops was to develop a spatial programme that not only offers the best value for money, but that also works best for the users, and guide all those involved towards new ways of working and using spaces.

A compact and light building

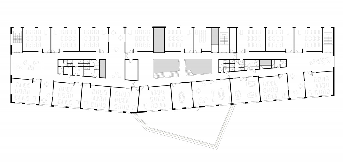
The result is a compact building of 9,200 m², which was completed in May 2023. To ensure daylight enters throughout the entire building, we’ve created a series of large voids; classrooms, teaching areas and office spaces all face the façades. The slightly tapered layout of the floor plans makes the volume look less bulky. At the same time, we’ve designed a number of open spaces between the classrooms, which can serve as open learn-and-play areas to be used by the different groups. By introducing these flexible areas, it was possible to reduce the intended programme – and thus keep the building even more compact.  Terraced storeys provide additional green outdoor spaces on the roof of the school, as an addition to the schoolyard. The relatively small size of the Campus Scolaire means it fits perfectly in its historical, small-scale surroundings.

Climate-proof construction

The façade and building’s structure have both been executed in combination of wood and concrete. On the upper floors, the façade is clad in wood, which gives the school a welcoming appearance, and the floors and internal walls has also been executed in wood. The plinth of the building is made of precast concrete slabs to prevent damage to the façade in case of flooding; for this reason, we’ve also raised the ground floor to a height of 70 cm and added openings to plinth, so that water can flow under the building. That this approach was more than needed became apparent during the construction already, when the Sauer burst its banks  in the floods of summer 2021.

Timber construction as a conscious choice

For the Campus Scolaire, we made the conscious choice to use wood as a building material wherever possible, because of its sustainability. Atelier PRO frequently uses timber constructions, with the adagium: “if you can build it in wood, you should”. In addition, the tactile nature of wood makes that the building appear even more compact.

Sustainability

The compact design also ensures high levels of sustainability. The integrated approach leads to a reduction of space, costs and the transport of pupils to and from school. In addition, the building meets the highest insulation requirements, is outfitted with green roofs, roof gardens and PV panels. Blinds keep the building cool and night vents provide ventilation. We deliberately chose to use 'low tech' solutions instead of relying fully on technology. As a support measure, we installed mechanical ventilation to meet the ‘Frisse Scholen’ requirements. Labels like this don’t exist yet in Luxembourg: Campus Scolaire is taking a lead into the future.

 

Publications

Architectura.be
Schooldomein nr 5 mei 2024 - Verbindende Campus Scolaire Echternach p30-31
Schulbau March 2023 p38-40
Brochure Campus Scolaire Echternach
Poetry & Technology 2021-2023  p12-13
PressReader "Campus Gare" in den Startlöchern

 

 

 

 

  • Bird's eye view ©WW+ (L)
  • Roof Terrace ©Linda Blatze
  • Facade
  • Entrance area ©WW+ (L)
  • Interior ©Linda Blatze
  • Interior ©Linda Blatze
  • Library ©Linda Blatze
  • Interior ©Linda Blatze
  • Site
  • First floor
  • Second floor
  • Section