Overbetuwe Town Hall Interior

New work environment


monastic atmosphere and natural materials

Overbetuwe Town Hall Interior

The Overbetuwe Town Hall occupies centre stage in the new urban planning of the station area of Elst. In 2001 Elst, Heteren and Valburg consolidated into Overbetuwe. Situated near the village’s old core, this robust building from now on will mark this regional transport junction that connects the village with the surrounding new extensional districts.

In the centre of the open space arises the Town Hall, designed in a lighter stone shade with warm and vivid loam tones, out of the ordinary of the surrounding apartments and office buildings of the terra cotta colour shades. Thus this multidirectional building presents itself distinctly as the main function on the square. The architecture communicates the monolith atmosphere of the brick architecture of the interbellum, without trying to make an exact copy.


It is not just the stone that gives the building its distinguished appearance. Angular rotations provide an elegant horizontal articulation of the main form, due to which the building obtains a representative appearance in all directions. Purposefully, the eastern side stands in the water, whilst the northern side can be observed as an outspoken square façade with a modern bell tower. On the south side the articulation accentuates a second entrance to the parking facilities.

Due to the applied materials and details, the building perfectly adjusts to the building typologies in Elst. The vertical windows and the substantial tower endow the façades with a monumental and imposing impact. This, and the deep-set window sills with bevelled edges, strengthens the refined relief of the façades. In addition, they supply more daylight inside and make sure that during the evening the window openings shine beautifully in artificial light, enhanced by the smooth and slightly gleaming façade stone.

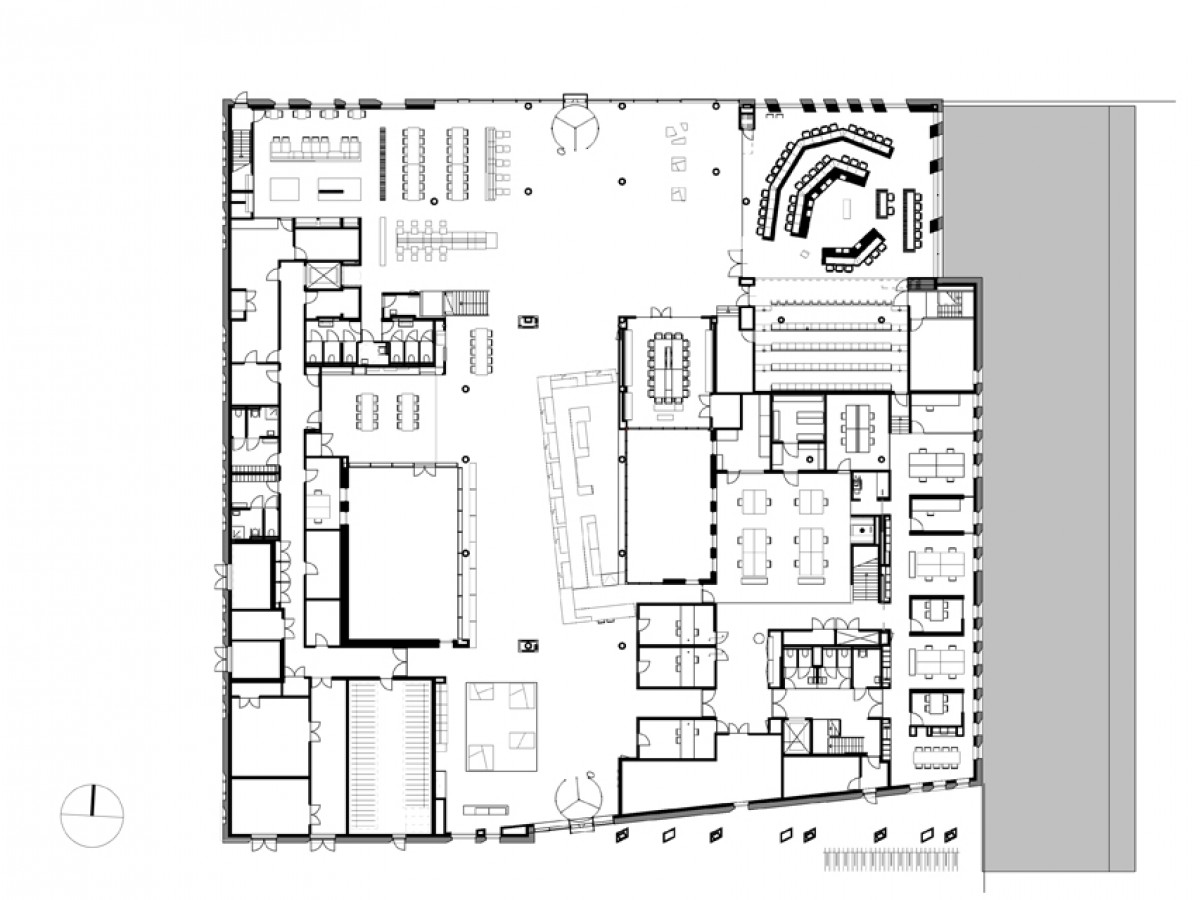
In this citified environment, an inner courtyard with a rooftop garden for the personnel and two patios for the clientele form a central haven in the heart of the building. The garden is surrounded by green covered façades, so that people can enjoy green views both from the central hall and the offices. Considering its functions, the building consists of two parts: one for the clientele and one for the employees. The counter area, where the patios provide plenty of daylight, forms part of the zone that is open for the clientele. Another part of this zone is the high public entrance hall with a void, which also connects the ground floor with the conference centre and the administration zone on the storey. The information rooms, meeting rooms and restaurant are also situated next to the hall. The council chamber is situated in a very perceptible location: on the corner, below the tower. By contrast, the protected personnel zone is screened off and situated behind the counters and on the storeys. For the whole building, the emphasis lies on granting spaciousness, and also the entrance or motion of light. In addition, the interior radiates an almost monastic atmosphere, with an abundance of light and natural materials inspired by the environment.

Following the Town Hall of Bronkhorst, the sustainability ambition again is extremely high: GreenCalc score A+, 250 points. To achieve this score, we have chosen particularly for very good insulation, (Rc 6.5m2K/W), intelligent low-energy installations (such as CO2 directed wall ventilators and thermal energy storage), a relatively compact building form and clever use of materials.

Due to a legal debate during the development plan procedure, the Mayors and Councillors  decided to stop the implementation of a new town hall. The college is considering its next steps.

  • atelier PRO
    north entrance
  • atelier PRO
    hall
  • atelier PRO
    restaurant
  • atelier PRO
    council room
  • atelier PRO
    licences desk
  • atelier PRO
    Committee Room
  • atelier PRO
    canyon
  • atelier PRO
    exterior
  • atelier PRO
    ground floor
  • atelier PRO
    first floor
  • atelier PRO
    second floor
  • atelier PRO
    third floor