design your own house

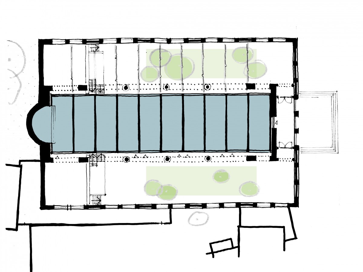
Atelier PRO is working on a unique plan: living in a church! Where? In this former church in Moerwijk on the Ekensteinstraat 3 we want to create a new residential complex - together with you.

The draft plan includes 10 to 12 individual houses with a price between € 235,000 and € 264,000. The surrounding area is being redeveloped right now, with new housing nearby an existing school. This means the Church will be part of a new neighborhood in the near future. For the next 2 months we have an option at this church! So join us!

We're looking for 12 individuals to join us and together decide and design their living space. Grab this chance to self-create a unique house and send us a message.

Did you know that the transformation of churches into residential complexes is not new for studio PRO? Previously we designed the Ludgerhof in Lichtenvoorde. Also for the Sacrament Church Sportlaan in The Hague a similar plan was designed. We can not wait to make this old church in Moerwijk more enjoyable.